Linea Veranda 45 m2 (egy szintes, két oldali óriás terasszal)
A Linea Veranda a „kevesebb fal, több életkörnyezet” elv szerint készült: középen kompakt, jól szervezett 45 m2 lakótér, körben pedig közel 100 m² használható fedett-nyitott teraszélet komoly grill konyhával — reggeli kávé a hegyekre, délutáni pihenő a lounge-ban, esti vacsora a kinti étkezőben.
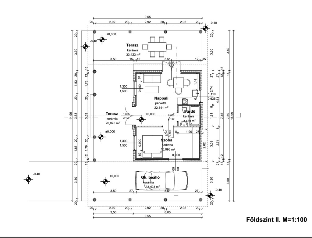
Belső tér
- Nappali–étkező: tágas, világos, ~22,14 m² – a fronton nagy üvegfelületekkel, közvetlen kijárattal a teraszra
- Hálószoba: kényelmes ~15,10 m², teljes falhossznyi tárolóval.
- Fürdő: praktikus, ~3,44 m², zuhanyzós kialakítással.
- Konyha: U-alakú pult, ablakos szellőzés, reggelizőpaddal a nappali felé (alaprajz szerint a középső traktusban).
Kültéri élménytér (a ház igazi varázsa)
- Középső/Front oldali fedett terasz: ~26,08 m² – ideális kinti étkezőnek és társasági térnek
- Bal oldali fedett terasz/veranda: ~33,42 m² – nyugágyak, kanapék, játékzóna; rossz időben is védett.
- Jobb oldali gépjármű-beálló: a jobboldali fedett rész alatt ~33,42 m² burkolt felület, közvetlen bejárattal a házhoz.
Miért szerethető?
- Körbetekintő tető és széles ereszek – nyáron árnyék, esőben védelem, télen passzív védelem a csapadék ellen.
- „Kint is szoba” koncepció – a két nagy, fedett terasz az év 3–4 évszakában használható.
- Egyszintes, akadálymentes alaprajz – minimális folyósó, maximális hasznos tér.
- Rugalmas: a bal fedett terasz később zárt télikertté vagy +1 szobává alakítható.
Műszaki tartalom
- Fal: Acélszerkezet, korszerű hőszigeteléssel (U ~0,17–0,12 W/m²K cél).
- Nyílászárók: 3 rétegű, melegperemes üveg, low-e bevonattal.
- Fűtés/hűtés: levegő-levegő hőszivattyú (klíma) + elektromos padlófűtés opció; fürdőben törölközőszárító.
- Burkolatok: kültéren fagyálló/FA terasz, bent vinyl/LVT a strapabírásért.
- Villámvédelem és acél kötőelemek a nagy ereszkinyúlások miatt.
Műszaki adatok (terv szerinti nettó funkciók)
- Nappali: ~22,14 m² • Háló: ~15,10 m² • Fürdő: ~3,44 m²
- Fedett teraszok összesen: ~92,8 m² (26,08 (front) + 33,42 (grill terasz) + 33,42 (gk.beálló)
- Gk. beálló: ~33,42 m²
Így lehet igazán otthonos egy 45 m²-es lakóház
Kis alapterület, mégis minden megvan benne, amire csak szükség lehet – inspirációként mutatunk néhány berendezési ötletet, hogyan hozhatod ki a legtöbbet a terekből.
Modern, praktikus és stílusos megoldások, amelyek kényelmet és otthonos hangulatot teremtenek – kívül-belül.









Nézd meg videónkat az álom otthonról: